Progetto ufficio DS studio associato
︎︎︎︎
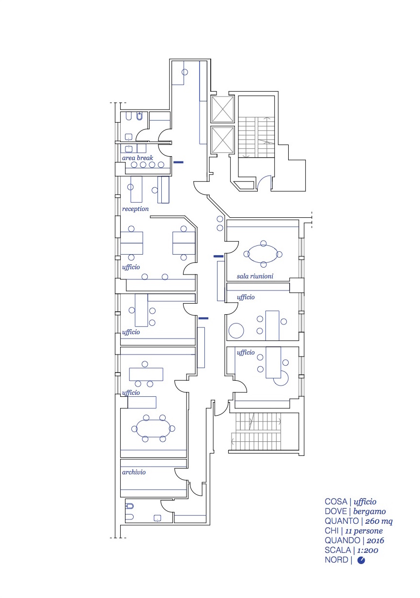
︎ Progetto di distribuzione interna di un ufficio di 260 mq. Progetto di arredo su misura e relooking dei mobili già in possesso. Affiancamento nella ricerca dell’immobile.
Il progetto è caratterizzato da un ampio corridoio dai toni neutri in cui si stagliano pannelli blu che dividono gli spazi e nascondono le armadiature. Le vele riprendono il colore del brand dello studio associato e aiutano a differenziare le aree private da quelle aperte al pubblico.










INFO
︎ mq. 260
︎ budget: < 50.000 €
︎ ufficio
︎ bergamo
︎ 2016
︎ cliente: privato
︎ budget: < 50.000 €
︎ ufficio
︎ bergamo
︎ 2016
︎ cliente: privato
FORNITORI
Firma snc, Remuzzi Marmi, Falegnameria Robustellini, Kartell
Firma snc, Remuzzi Marmi, Falegnameria Robustellini, Kartell
TEAM
Progetto e arredo su disegno: thecaterpilar
Direttore lavori: geom. Marco Rebussi
Fotografie e styling: Caterina Pilar Palumbo
Progetto e arredo su disegno: thecaterpilar
Direttore lavori: geom. Marco Rebussi
Fotografie e styling: Caterina Pilar Palumbo